Banc de test avec servo-vérin hydraulique permettant d’appliquer des cycles de charge (traction et compression) ou de déformation sur des composants mécaniques, par exemple pour valider leur résistance en fatigue.

Caractéristiques techniques

  • Force statique +/- 25 kN
  • Force dynamique +/- 20 kN
  • Déplacement +/- 75mm
  • Vitesse maximale 1.8 m/s
  • Fréquence maximale 100 Hz

Sebastian Leopold
Full Professor UAS/Department Head

Office
HEIA_D10.07

Phone
+41 26 429 66 64

E-mail
sebastian.leopold@hefr.ch

Der Prüfstand dient zur Ermittlung sowie zur Überprüfung der Getriebecharakteristik, z.B. Wirkungsgrad und/oder Verschleiss. Der Prüfstand verfügt über zwei Elektromotoren für das Antreiben bzw. das Bremsen und ermöglicht die Messung von Drehzahl, Drehmoment und Drehwinkel auf Antriebs- und Bremswellen sowie Betriebstemperaturen.

Caractéristiques techniques

  • Motor auf der Antriebseite

    • Drehzahl 1500 min-1
    • Drehmoment 77Nm (max. 94Nm)
    • Leistung 8900W
  • Motor auf der Bremsseite

    • Drehzahl Nenndrehzahl 80 min-1
    • Drehmoment 695 Nm (max 714Nm)
    • Leistung 5822W

Sebastian Leopold
Full Professor UAS/Department Head

Office
HEIA_D10.07

Phone
+41 26 429 66 64

E-mail
sebastian.leopold@hefr.ch

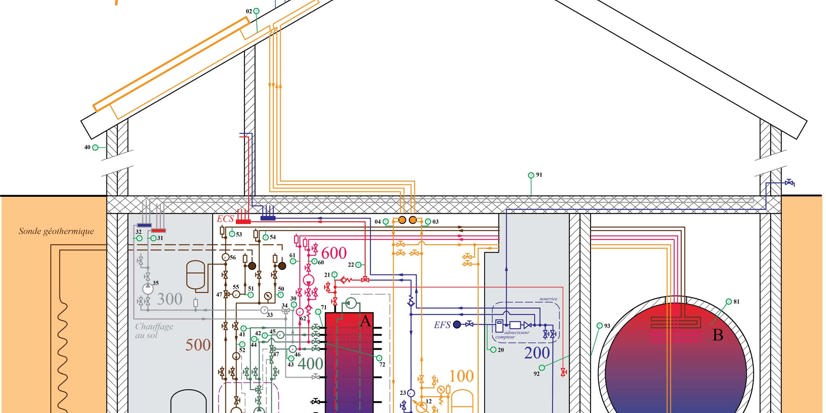
Laboratoire à échelle réelle, implanté dans une maison privée, sous forme de système de chauffage et de préparation d’eau chaude sanitaire à faible consommation, entièrement instrumentalisé, basé sur la combinaison d’une pompe à chaleur (avec sonde géothermique), de panneaux solaires thermiques et d’un stockage de chaleur saisonnier.

Caractéristiques techniques principales

  • Pompe à chaleur : 6.4 kW
  • Sonde géothermique : 150 m
  • Panneau solaires thermiques : 40 m2
  • Stockage primaire : 1’600 l
  • Stockage secondaire : 30'000 l
  • COP moyen pompe à chaleur/installation : 5.0/4.6

Thierry Ursenbacher
Associate Professor UAS

Office
HEIA_D10.17

Phone
+41 26 429 66 63

E-mail
thierry.ursenbacher@hefr.ch

Soufflerie Escher-Wyss dite à retour, avec veine d’essai ouverte, équipée d’une balance aérodynamique 3 axes et d’un tapis roulant, permettant de mesurer les forces et moments aérodynamiques sur une maquette, comme par exemple la traînée ou la portance.

Caractéristiques techniques principales :

  • Ventilateur : 45 kW
  • Vitesse maximale 33 m/s
  • Taille de la veine d’essai : 500mm x 500 mm
  • Forces aérodynamiques max. : entre 100 et 200 N
  • Moments aérodynamiques max. : entre 2 et 4 Nm

Thierry Ursenbacher
Associate Professor UAS

Office
HEIA_D10.17

Phone
+41 26 429 66 63

E-mail
thierry.ursenbacher@hefr.ch

Différents bancs d’essais permettant de tester les moteurs thermiques en mode stationnaire (freinage seul, régime constant) ou en mode dynamique (freinage et entrainement, régime variable).

Caractéristiques techniques :

  • 1 banc didactique, puissance 2kW (machine asynchrone)
  • 1 banc modulaire permettant d’utiliser :
    • 1 frein asynchrone de 60kW, pouvant fonctionner individuellement ou en tandem avec le frein suivant :
    • 1 frein à courant de Foucault 200kW
  • 1 banc à frein hydraulique de 720kW
  • Système d’acquisition de données
  • Système de mesure haute fréquence de pression cylindre, pression échappement et pression admission

Christian Nellen
Associate Professor UAS

Office
HEIA_E00.08

Phone
+41 26 429 68 46

E-mail
christian.nellen@hefr.ch

Suite logicielle permettant la conception et la simulation de composants et systèmes mécaniques. Elle inclue notamment les logiciels NX (CAO), NX-Nastran (simulation FEM), Simcenter Amesim (simulation de systèmes) et Simcenter 3D Motion (simulation MBS)

Caractéristiques techniques principales :

Licences académiques disponibles et licences professionnelles sur demande

Olivier Mauron
Lecturer UAS

Office
HEIA_D10.05

Phone
+41 26 429 69 75

E-mail
olivier.mauron@hefr.ch

La smartFactory de le HEIA-FR est un laboratoire d’essai dans le cadre de la transformation numérique de la production industrielle. 

Conçue à l’image d’une ligne de production moderne, la smartFactory présente les attributs suivants : extensible, reconfigurable, exécution de pièces personnalilsées comme de séries de taille plus importante, stockage et transport autonome de composants et de produits, liaison à un MES et un ERP.

Missions de smartFactory:

  • Démonstrateur de la diversité des capteurs et actionneurs d’un système automatisé
  • Démonstrateur du concept de Cyber Physical Factory (Industrie 4.0)
  • Incubateur d’idées pour la transformation numérique
  • Plateforme de test et de développement de projets innovants de connectivité industrielle, IIoT, KPI Dashboard, SCM, logistique, distribution, etc.

La smartFactory est composée d’un ensemble de 8 unités ayant chacune sa partie contrôle indépendante connectée au réseau industriel et aux alimentations 400V et air comprimé. Circulant à bord de navettes sur un convoyeur, le produit manufacturé parcourt les unités et demande à chacune d’entre elle si elle peut lui ajouter la valeur attendue.

Nicolas Rouvé
Associate Professor UAS

Office
HEIA_D00.09

Phone
+41 26 429 69 30

E-mail
nicolas.rouve@hefr.ch